Située dans la charmante Ciudad Quesada, cette collection exclusive de trois maisons indépendantes offre un cadre idéal pour ceux qui recherchent tranquillité et confort. La typologie des propriétés est "Indépendante", garantissant intimité et un espace personnel unique. Ciudad Quesada est connue pour son ambiance accueillante et sa proximité avec les services essentiels, ce qui en fait un emplacement privilégié pour établir un foyer. Les maisons sont conçues pour offrir un maximum de confort et de fonctionnalité, avec une distribution qui s'adapte aux besoins modernes de toute famille. La proximité de la mer, à seulement 4 km, permet de profiter des plages et du climat méditerranéen, tandis que l'aéroport se trouve à 40 km, facilitant les déplacements internationaux.
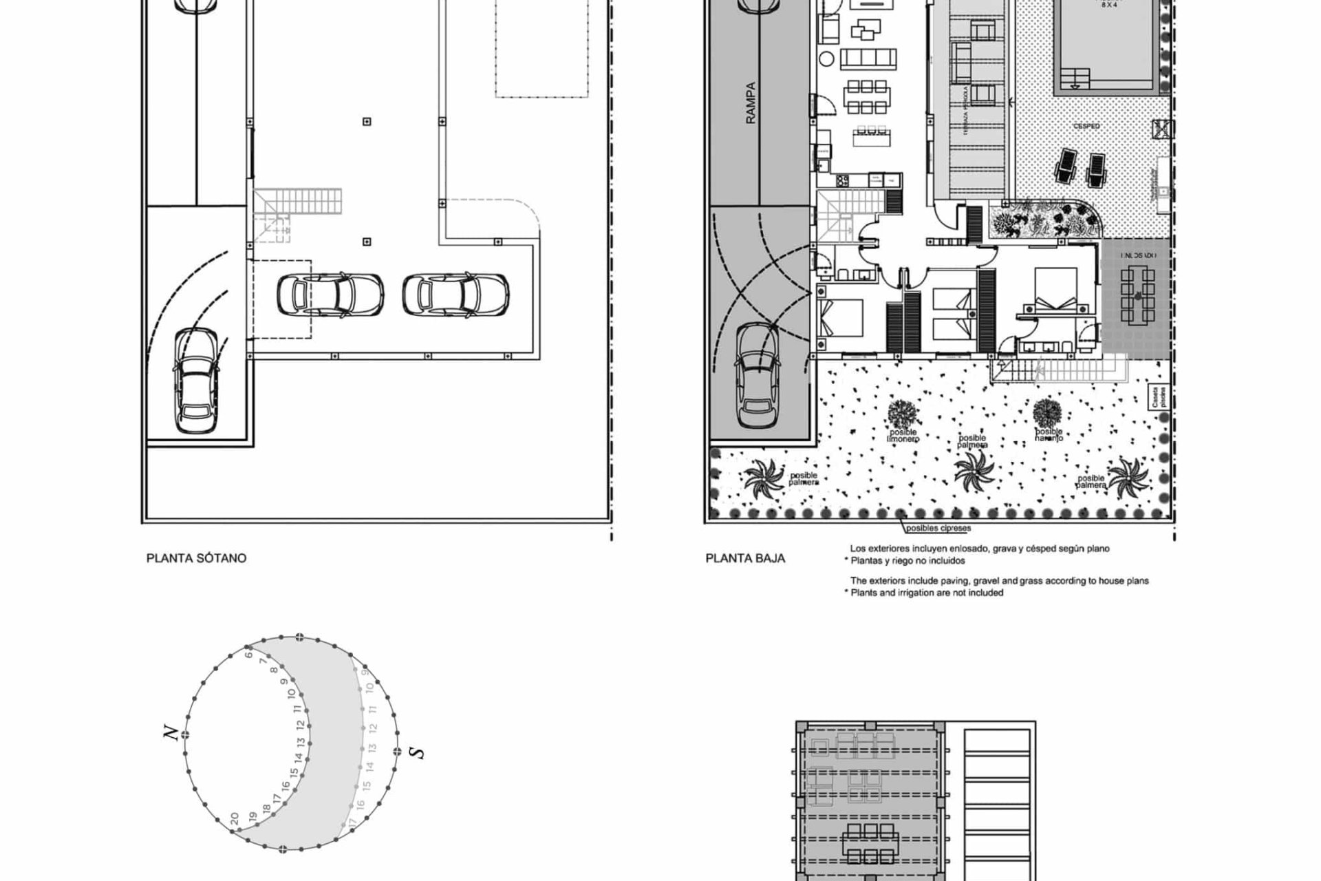
EXTÉRIEURS
Les extérieurs de ces maisons indépendantes sont conçus pour profiter au maximum du climat de Ciudad Quesada. Chaque propriété dispose d'un jardin privé, idéal pour créer une oasis personnelle de tranquillité. La présence d'une piscine privée ajoute une touche de luxe, permettant de se rafraîchir lors des journées les plus chaudes. De plus, les terrasses offrent un espace parfait pour se détendre en plein air ou profiter de repas en famille. L'inclusion d'une pergola fournit de l'ombre et un endroit accueillant pour se reposer. Le solarium est un autre atout, offrant un espace supplémentaire pour bronzer ou profiter des vues panoramiques de la région.
INTÉRIEURS
L'intérieur de ces maisons indépendantes est conçu pour offrir confort et style. Avec des options de 3 chambres et 2 ou 3 salles de bains, les propriétés s'adaptent à différents besoins familiaux. Les sols en grès cérame apportent une touche moderne et sont faciles à entretenir. Les placards intégrés dans les chambres optimisent l'espace de rangement, maintenant l'ordre et la fonctionnalité. La distribution comprend un garage, ce qui ajoute confort et sécurité pour le stationnement des véhicules. La présence d'un jacuzzi à l'intérieur offre un espace de détente personnel, idéal pour se déconnecter après une longue journée.