Situées dans la charmante ville de Torrevieja, ces maisons mitoyennes offrent une opportunité unique de profiter de la vie sur la Costa Blanca. Avec un design moderne et fonctionnel, chaque propriété est pensée pour maximiser le confort et la commodité de ses résidents. La proximité de la mer, à seulement 1,2 km, permet de profiter des plages et du climat méditerranéen toute l'année. De plus, l'aéroport se trouve à 41 km, facilitant l'accès aux connexions internationales. Ces logements sont idéaux pour les familles qui recherchent un environnement paisible sans renoncer aux commodités de la vie urbaine.
EXTÉRIEURS
Les extérieurs de ces maisons mitoyennes sont conçus pour profiter au maximum du climat ensoleillé de Torrevieja. Chaque propriété dispose d'un jardin privé, parfait pour profiter de moments en plein air avec amis et famille. De plus, elles disposent d'une terrasse offrant un espace supplémentaire pour se détendre ou dîner en plein air. Pour ceux qui recherchent une touche de luxe, chaque maison mitoyenne comprend une piscine privée, offrant une oasis personnelle pour se rafraîchir pendant les chaudes journées d'été. Le solarium est un autre atout, idéal pour bronzer ou profiter des vues panoramiques de la région.
INTÉRIEURS
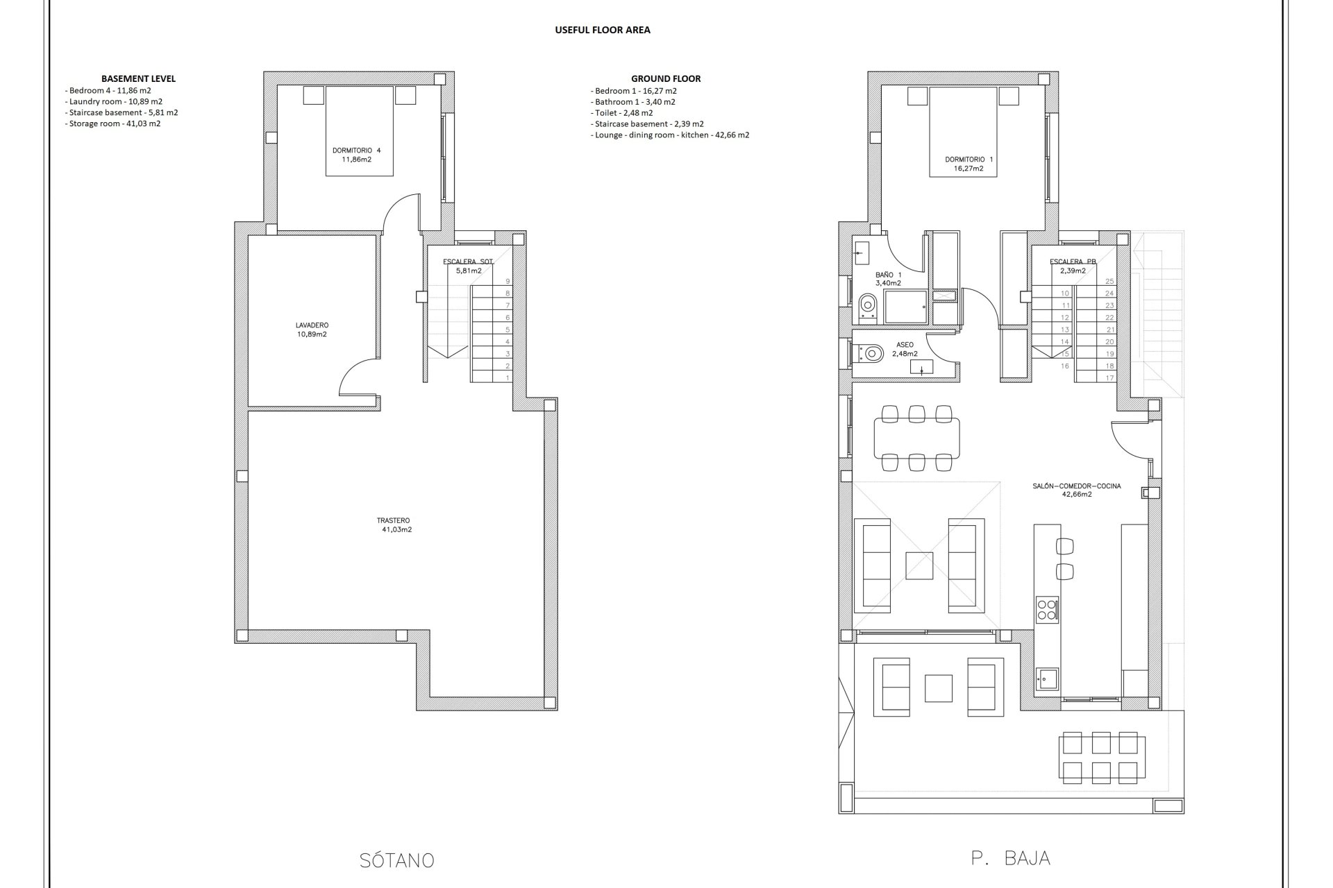
L'intérieur des maisons mitoyennes est conçu pour offrir un espace accueillant et fonctionnel. Avec quatre chambres, ces propriétés sont parfaites pour les familles nombreuses ou pour ceux qui ont besoin d'espace supplémentaire pour les invités. Les deux salles de bains sont équipées de finitions modernes, assurant confort et style. La cuisine est équipée d'appareils électroménagers inclus, facilitant la vie quotidienne dès le premier jour. Les sols en céramique apportent une touche élégante et sont faciles à entretenir. De plus, les placards intégrés dans les chambres offrent un rangement efficace, maintenant l'ordre et l'organisation dans la maison.