Luxe villa in aanbouw met zeezicht aan de kust van Benissa (Costa Blanca, Alicante). Deze villa in Ibiza-stijl met prachtig uitzicht op zee ligt op 400 meter van het strand van Fustera, restaurants en een supermarkt.
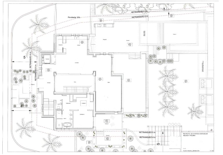
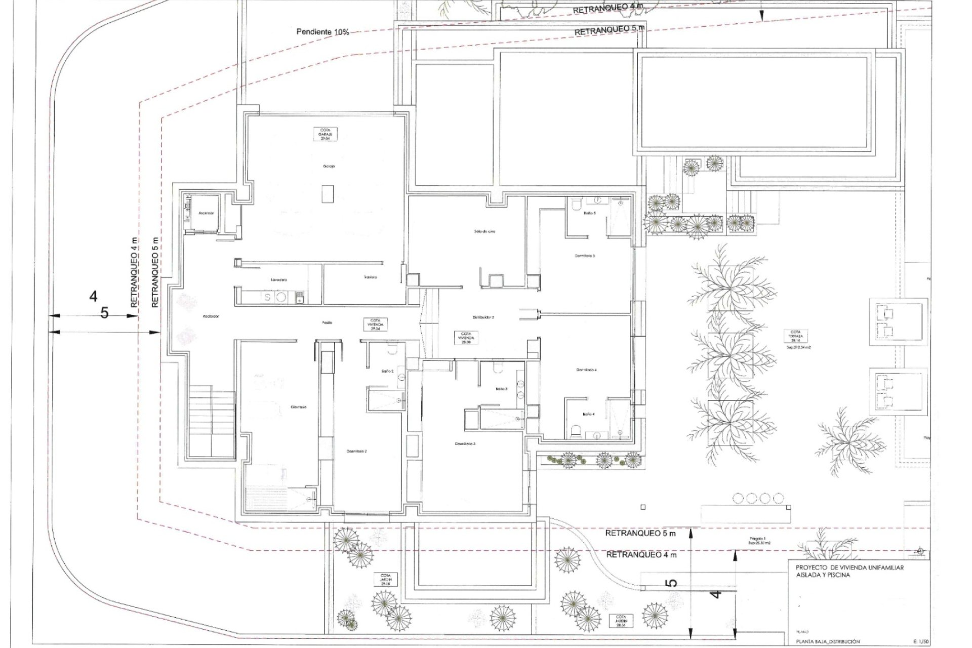
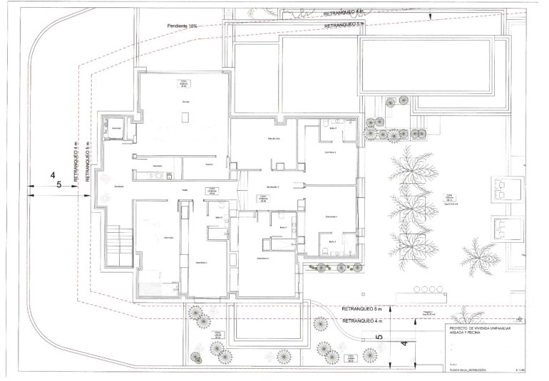
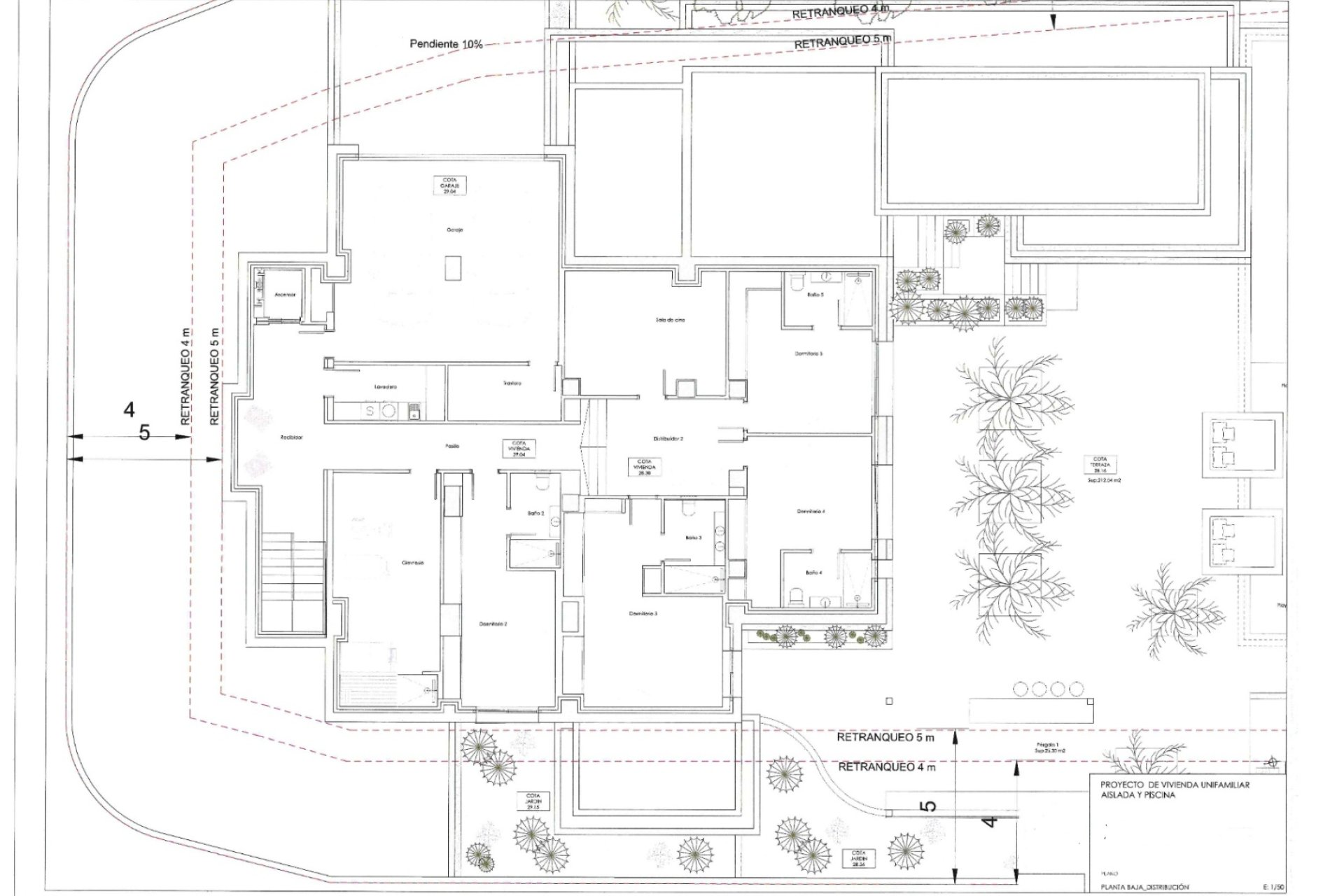
Deze villa zal ongeveer 600m2 groot zijn en is gelegen op een groot perceel van 1.800m2 en zal worden gebouwd met hoogwaardige materialen en met uitzicht op zee vanuit alle kamers.
Het is verdeeld over 2 verdiepingen:
- Eerste verdieping, waar de begane grond zich bevindt. Het is verdeeld in inkomhal, entree, mooie open keuken volledig uitgerust open naar de eetkamer met toegang tot een mooie patio, ruime woonkamer met een gezellige open haard. Vanaf deze verdieping hebben zowel de keuken als de woon- en eetkamer toegang tot een terras en een buitenveranda en een klein overloopzwembad. Op dezelfde verdieping is er een gastentoilet en een grote slaapkamer met kleedkamer en en-suite badkamer met ligbad en douche. De slaapkamer heeft ook toegang tot een terras.
- Begane grond, deze verdieping is te bereiken middels een interne trap of middels een lift. Het is verdeeld in een kleine hal, een fitnessruimte, een wasruimte en een berging, een bioscoopzaal en 4 slaapkamers met en-suite badkamers. Op deze verdieping bevindt zich ook de garage met capaciteit voor 2 auto's.
Buiten de begane grond bevindt zich de overdekte barbecue met een pergola, een overloopzwembad en een terras. Deze ruimte is ook vanaf de eerste verdieping te bereiken door middel van een buitentrap.
De bouw van dit ongelooflijke bouwproject zal in 2025 beginnen.